LA PRIMERA COCINA EN LA REPUBLICA DOMINICANA FABRICADA PARA VENCER LA HUMEDAD
Descubre nuestra Ingeniería de Resiliencia Gretek: diseños inteligentes y materiales de alta resistencia que garantizan una cocina impecable para toda la vida.
«En el clima del Caribe, una cocina no solo debe ser bella; debe ser invencible. En Gretek, hemos diseñado la primera solución arquitectónica en la República Dominicana creada específicamente para vencer la humedad y el paso del tiempo. A través de nuestra Ingeniería de Resiliencia, fusionamos el rigor del diseño europeo con materiales de alta resistencia y una planificación técnica que blinda cada módulo contra las filtraciones y el moho. No instalamos muebles, entregamos estructuras inteligentes y acabados impecables que garantizan una inversión para toda la vida.»
📜 El Manifiesto Gretek. La Arquitectura de la función
1926: El Nacimiento de la Eficiencia Operativa
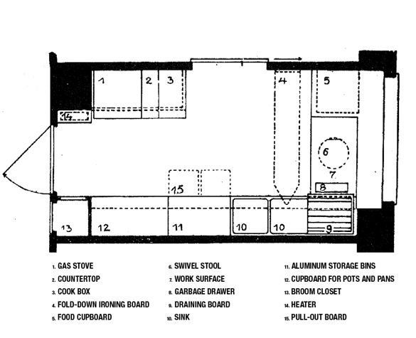
Hace un siglo, en medio de la vanguardia europea, la arquitecta Margarete (Grete) Schütte-Lihotzkytransformó el caos doméstico en precisión industrial. Al concebir la Cocina de Frankfurt, Margarete no buscaba decorar un muro; buscaba optimizar la vida.
Su genialidad radicó en la función: cada centímetro cuadrado fue diseñado para que el acto de cocinar fuera fluido, cómodo y lógico. La cocina dejó de ser un almacén de trastos para convertirse en una estación de trabajo ergonómica, donde el movimiento humano dictaba la forma del mobiliario.
2026: La Reingeniería de la Utilidad
En Gretek, hemos tomado ese ADN de optimización espacial y lo hemos dotado de una armadura tecnológica para el siglo XXI. Entendemos que en el Caribe, la función perfecta se pierde si la estructura claudica ante el clima.
Para nosotros, la verdadera comodidad no es solo que todo esté al alcance de la mano; es que el sistema que lo sostiene sea invencible.
Gretek
«El futuro se cuece aquí»
El Desafío Tropical. Por qué fallan las cocinas en la República Dominicana?
«En nuestro país, una cocina enfrenta desafíos que el diseño convencional suele ignorar. La humedad tropical, la salinidad del aire y la falta de planificación técnica condenan a la mayoría de los proyectos a un deterioro prematuro. En Gretek, hemos analizado el ciclo de vida de cientos de instalaciones locales para identificar los 6 puntos críticos donde el mobiliario tradicional falla. Entender por qué una cocina se degrada antes de tiempo es el primer paso para diseñar una que resista para siempre. Aquí te revelamos las causas reales de por qué las cocinas dominicanas pierden su valor y funcionalidad en pocos años:»
¿Por qué fallan las cocinas en RD?
Identificamos los 6 fallos críticos que destruyen tu inversión en menos de 24 meses.
1. Humedad y Capilaridad (El enemigo silencioso)
+
La falta de barreras hidrófugas en la base permite que la humedad del suelo suba por los paneles, hinchando la madera y generando moho en tiempo récord.
2. Herrajes de Baja Calidad (Oxidación Prematura)
+
El aire salino y la humedad tropical corroen bisagras y rieles que no cuentan con certificación de resistencia a la corrosión, bloqueando puertas y gavetas.
3. Tableros sin Tratamiento Hidrófugo
+
El uso de aglomerados estándar sin densidad adecuada provoca que el material absorba el vapor de agua, deformando la estructura de la cocina.
4. Errores de Nivelación y Carga
+
Una instalación sin precisión milimétrica genera tensiones en los módulos, provocando grietas en los topes de granito o cuarzo por el peso mal distribuido.
5. Sellado Deficiente en Zonas de Agua
+
Filtraciones imperceptibles en el fregadero destruyen el gabinete base si no existe un blindaje técnico que repela el contacto directo con el agua.
6. Falta de Ventilación Estructural
+
Diseños cerrados que no permiten la circulación de aire tras los módulos fomentan nidos de insectos y acumulación de calor que degrada los adhesivos.
La Solución Integral bajo el estándar Gretek. Ingeniería Contra el Tiempo.
Los fallos que acaba de leer no son accidentes de uso; son errores de origen. Aplicar métodos convencionales a un clima que no perdona es programar una fecha de vencimiento para su hogar.
En Gretek, decidimos dejar de «parchar» problemas comunes para empezar a mutar la estructura. Hemos sustituido la improvisación por Resiliencia Operativa, elevando el estándar de la cocina de un simple mueble a un ecosistema de alto desempeño.
«Frente al deterioro inevitable de las cocinas convencionales en el Caribe, en Gretek hemos redefinido el estándar de fabricación local. Nuestra respuesta no es estética, es estructural: aplicamos una Ingeniería de Materiales diseñada específicamente para la resiliencia climática.
Seleccionamos exclusivamente tableros de ultra-alta densidad con tratamiento hidrófugo avanzado y sistemas de herrajes de alto rendimiento mecánico.
«La belleza de una cocina no se mide en su primer día, sino en su capacidad de permanecer impecable, funcional y minimalista durante décadas. No solo instalamos cocinas; blindamos tu inversión.«
Ingeniería de Autor
Resiliencia Gretek
Del Manifiesto a la Realidad
«La carpintería tradicional no fue diseñada para el trópico. Nuestra ingeniería sí.»
«Bienvenido a la Era de la Resiliencia. Bienvenido al Sistema Gretek»
I. 🛠️ Los 3 Puntos de la Ingeniería de Resiliencia Gretek:
Para que una cocina sea eterna en el Caribe, se necesita una selección quirúrgica de componentes. Nuestra Ingeniería de Autor se manifiesta a través de tres ejes fundamentales que trabajan en sincronía absoluta.
No son solo materiales; es el blindaje, la armadura y el sistema nervioso de su inversión:
Tableros RH melamínico y fenólico de ultra-alta densidad con certificación hidrófuga. La base sólida que resiste la presión y el tiempo sin deformarse.
Cada tablero es seleccionado por su estabilidad dimensional y su capacidad de retención de herrajes, garantizando que su cocina mantenga la alineación perfecta década tras década.
Atributo Clave: Resistencia al impacto y estabilidad estructural superior.
📊 Tabla Técnica: Línea Gretek BoardPure™
Características
BoardPure Element (Melamina RH Regional)
BoardPure Gama/Ultra (Melamina europea/Fenólico
Núcleo Estructural
Partícula de alta densidad con tratamiento hidrófugo estándar.
Núcleo de polímero fenólico o MDF ultra-hidrófugo de fibra compacta.
Resistencia al Trópico
Alta resistencia a la humedad ambiente y cambios de temperatura.
Inmune: Diseñado para contacto directo con agua y ambientes salinos.
Acabado Superficial
Melamina termofusionada con textura táctil reforzada.
Laminado de alta presión (HPL) con tecnología antihuellas y nanotecnología.
Protección Antibacteriana
Escudo superficial contra microorganismos.
Certificación grado quirúrgico / alimentario (Bio-Safe).
Uso Recomendado
Estructuras de gabinetes y áreas secas de alta rotación.
Módulos críticos (fregaderos), frentes de diseño y zonas de alto impacto.
Índice de Resiliencia
⭐⭐⭐⭐ (8/10)
⭐⭐⭐⭐⭐ (10/10)
«Diseñamos bajo nuestra firma exclusiva BoardPure™, que reune la esencia de las mejores marcas globales, para crear una línea de tableros optimizada para el clima del Caribe»
02. Gretek Surface™ (La Armadura): *
Superficies minerales y sinterizadas de última generación. Inmunidad total al calor, al rayado y a la porosidad.
La encimera es una pieza de ingeniería térmica y mecánica. Colaboramos con los líderes mundiales (Marmotech, Silestone, Neolith y Dekton) para ofrecerle una escalera de 7 niveles de protección. Desde la calidez de la piedra natural hasta la indestructibilidad de la piedra sinterizada.
Atributo Clave: Superficies ultra-compactas, no porosas y resistentes al choque térmico.
📊 Tabla Técnica: Línea Gretek Surface
Modelo/Nivel
Categoría Técnica
Composición
Atributo de Ingeniería
Classic A
Genérico High-Grade
Granito / Piedra Natural
Resistencia clásica y durabilidad sólida.
Classic A+
Cuarzo Estándar
90% Cuarzo Natural
Porosidad cero y alta higiene alimentaria.
Essential
Cuarzo Premium
Piedra Natural Sensa/Cuarzo Premium de Silestone
Resistencia superior al rayado y manchas.
Advanced
Piedra Sinterizada
Minerales Sinterizados (A y A+)
Inmune al calor directo y rayos UV.
Signature
Sinterizado Ultracompacto
Tecnología de Partículas. Dekton
Máxima Resiliencia: Indestructible al uso diario.
«Desde la calidez de la piedra natural hasta la invulnerabilidad del ultracompacto, en StoneLab definimos la superficie según tu ritmo de vida.»
03. Gretek System Motion™
El Sistema Nervioso. Herrajes de precisión alemana. El movimiento fluido que garantiza que la funcionalidad nunca se degrade, sin importar cuántas veces se abra una gaveta.
Mecánica de Precisión de Ciclo Infinito.
El valor de una cocina se siente en el tacto. System Motion integra los mejores sistemas de herraje europeos con tecnología de amortiguación hidráulica. Desde bisagras de cierre silencioso hasta cajones de extracción total con organizadores inteligentes, cada movimiento es fluido, preciso y eterno.
Atributo Clave: Garantía de funcionamiento suave y silencioso de por vida.
📊 Tabla Técnica: Línea Gretek Motion System
«En Gretek, el lujo no solo se ve, se escucha. Motion System garantiza un silencio absoluto en cada cierre.»
Modelo/Sistema
Categoría Técnica
Tecnología de Movimiento
Atributo de Ingeniería
Compass
Movimiento Base
Cierre Suave Estándar
Resistencia certificada para uso diario.
Elegant
Movimiento Fluido
Amortiguación Hidráulica
Deslizamiento silencioso y tacto refinado.
Cubic
Movimiento de Carga
Extracción Total Reforzada
Estabilidad máxima en gavetas de gran formato.
Elite
Movimiento de Autor
Tecnología Electrónica / Push
Máxima Resiliencia: Apertura asistida y diseño sin tiradores.
» Nuestros herrajes están certificados para 200,000 ciclos de apertura y cierre. Esto equivale a abrir una cocina 25 veces al día, todos los días, durante 20 años.»
II. 🛠️ Blindaje Estructural: Los 8 Puntos HydroShield™
Seleccionar el mejor cuerpo, armadura y sistema nervioso es el primer paso, pero la verdadera Ingeniería de Autor reside en cómo estos elementos se ensamblan para resistir las condiciones más extremas.
I. Ingeniería de Precisión (El Inicio)
01. Telemetría Láser de Alta Precisión
Escaneo digital milimétrico del espacio que garantiza que el sistema BoardPure encaje perfectamente en el muro, eliminando errores de medición manual.
02. Procura de Materiales Certificados
Selección rigurosa de superficies originales (Silestone/Dekton) con trazabilidad de fábrica, asegurando resistencia térmica y mecánica superior.
03. Producción CNC Robotizada
Corte computarizado de alta fidelidad que permite que el Sello de Uretano (UR) sea invisible y hermético, blindando las uniones contra filtraciones.
II. Sistema Gretek HydroShield™ (El Blindaje)
04. Sistema HydroShield™ Integrado
Aplicación de los 4 pilares de resiliencia (Avirex, Núcleo Fenólico, Zócalo de Higiene y Sellado UR) para crear un ecosistema 100% resistente a la humedad del trópico.
05. Instalación Especializada de Ingeniería
Montaje técnico ejecutado por personal propio capacitado bajo protocolos de resiliencia estructural, asegurando una nivelación y sellado final de grado industrial.
III. Compromiso de Entrega y Vida Útil (El Cierre)
06. Entrega Garantizada en 25 Días
Flujo logístico optimizado «Just-in-Time» que nos permite entregar su cocina de alta gama en un tiempo récord de 25 días laborables, sin comprometer la calidad.
07. Soporte Post-Entrega Activo
Acompañamiento técnico y garantía activa para asegurar que cada componente de su cocina mantenga su funcionalidad y estética impecable a través de los años.
08. Certificación de Resiliencia Final
Validación final de hermeticidad y operatividad. Su cocina no solo se entrega, se certifica como una estructura diseñada para durar décadas en la República Dominicana.
«Hemos sintetizado nuestra experiencia en 8 Puntos de Resiliencia Crítica, un protocolo de blindaje estructural donde el Sistema HydroShield™ actúa como el corazón defensivo de su cocina. Porque una cocina Gretek no solo debe verse impecable; debe ser técnicamente invencible.»
Gretek HydroShield™ . Los Factores Diferenciadores Gretek
Ecosistema de Blindaje Técnico para el Trópico
Pilar 01 Lámina Avirex™ Escudo Exterior
Recubrimiento de ingeniería de alta resistencia diseñado para repeler la corrosión salina y el desgaste mecánico. Su superficie no porosa impide que la humedad ambiental penetre en las capas internas, manteniendo la estética original inalterable frente al salitre del Caribe.
Pilar 02 Núcleo Fenólico (HPL) Corazón Hidrófugo
Estructura de compacto fenólico de alta densidad. A diferencia de las maderas procesadas, este núcleo es 100% inmune al agua, eliminando por completo el hinchamiento, la deformación y la proliferación de hongos o bacterias en ambientes de alta humedad.
Pilar 03 Zócalo de Higiene Barrera Estructural
Sistema de elevación técnica que rompe la capilaridad del suelo. Actúa como una barrera física que protege la base de la cocina contra filtraciones accidentales, inundaciones o humedad por limpieza, garantizando que el gabinete nunca toque el agua estancada.
Pilar 04 Sellado UR (Ultra-Resistente) Hermeticidad Total
Blindaje de juntas mediante tecnología de Sello de Uretano. Esta fusión térmica crea una unión molecular hermética en cada arista, impidiendo que el vapor de cocción o micro-filtraciones penetren en las uniones, el punto más crítico de falla en la carpintería tradicional.
Nivel de Resiliencia de cada colección Gretek
Punto Débil Agua
PVC en Fregadero
Fenólico en Fregadero
Fenólico en zona húmeda
Fenólico en toda la base
Pared
Sellado Uretano
Membrana Avirex
Membrana + Uretano
Sistema de Resiliencia Total
Estética Herraje
Acero Zincado
Acero Niquelado
Negro Ónix
Integración Total (Ocultos)
Un sistema de blindaje tan avanzado requiere una ejecución milimétrica. Para garantizar que cada uno de los 8 puntos de resiliencia se aplique con exactitud quirúrgica en su hogar, hemos diseñado el Ciclo de Proyecto Gretek (CPG)..»
III. El ciclo del Proyecto. 12 Etapas de Precisión.
Del Rigor Técnico al Éxito Ejecutado: El Ciclo CPG.
«En Gretek, la excelencia no es un accidente, es el resultado de un método. Entendemos que una cocina de alta resistencia nace mucho antes de la instalación; por eso, hemos sintetizado nuestro rigor técnico en un ciclo de 12 etapas de precisión. Desde el levantamiento milimétrico hasta la entrega final, cada fase está diseñada para eliminar el error humano y garantizar una ejecución impecable. No solo fabricamos mobiliario, gestionamos un proceso de ingeniería donde la planificación alemana se encuentra con la realidad arquitectónica dominicana para asegurar una obra perfecta, sin sorpresas y para toda la vida.»
Ciclo de Proyecto Gretek (CPG)
Protocolo de 12 Pasos para una Ingeniería Culinaria de Excelencia
Fase I: Inteligencia y Diagnóstico
01.Registro Digital (HubSpot In-Take)
Captura de datos y requerimientos iniciales en nuestro ecosistema CRM para garantizar una trazabilidad total del proyecto desde el primer contacto.
02.Evaluación Inicial de Viabilidad
Análisis técnico de viabilidad espacial donde definimos la Serie Gretek adecuada a su arquitectura y necesidades operativas.
03.Cotización Preliminar Online
Proyección estimada de inversión basada en parámetros estándar de nuestro MaterialLab, brindando transparencia financiera inmediata.
Fase II: Ingeniería de Campo
04.Levantamiento en Sitio (Láser Scan)
Auditoría métrica con tecnología láser para detectar desplomes de muros y geolocalización exacta de puntos de instalaciones (agua/luz).
05.Cotización Técnica Final
Presupuesto definitivo desglosado por componentes de ingeniería: BoardPure, StoneLab y Motion System, basado en las medidas reales de campo.
06.Aprobación y Validación de Inversión
Validación formal de la inversión y fijación del cronograma de ejecución bajo el estándar de cumplimiento Gretek.
Fase III: Legal y Arquitectónica
07.Expediente y Contratos
Formalización jurídica del proyecto, definición de garantías de resiliencia y términos de cumplimiento legalmente respaldados.
08.Propuesta de Diseño (CoreDesign™)
Desarrollo de planos técnicos y renders de alta fidelidad. Selección final de acabados en nuestro ColorStudy & TextureLab.
Fase IV: Ejecución y Entrega
09.Producción Automatizada CNC
Procesamiento de materiales en planta con corte y canteado de precisión industrial, asegurando la hermeticidad y el blindaje HydroShield™.
10.Instalación Técnica Especializada
Ensamblaje en sitio ejecutado por especialistas, siguiendo estrictos protocolos de nivelación y ajuste estructural de grado industrial.
11.Rectificaciones y Acta de Conformidad
Auditoría final de funcionamiento y ajustes milimétricos. Firma de Acta de Conformidad que valida la entrega del proyecto a satisfacción total.
12.Seguimiento Post-Venta y Soporte
Activación del programa de mantenimiento y monitoreo de satisfacción a través de nuestra plataforma de soporte digital.
«Nuestros Materiales son la Trilogía de Resiliencia.» ( – Gretek BoardPure, Gretek Surface, Gretek Motion System).
«Nuestra Tecnología es HydroShield.» (El cómo lo hacemos – Los 8 puntos de resiliencia y los 4 puntos diferenciadores Resiliencia y blindaje total).
«Nuestros Proceso es la ingeniería.» (12 pasos para una cocina bien ejecutada).
Optimización del espacio. Ingeniería al servicio del movimiento.
Una propuesta de evolución radical a la arquitectura modular
Ergonomía de Flujo: Distribuciones basadas en la lógica de Frankfurt, donde cada giro y cada apertura están calculados para su máximo rendimiento operativo.
Resiliencia Estructural: El Sistema HydroShield™ asegura que esa operatividad no se degrade. Blindamos la función con núcleos fenólicos y sellado de uretano, garantizando que la precisión del primer día se mantenga intacta por décadas.
Tecnología de Precisión: Un Ciclo de Proyecto (CPG) monitoreado milimétricamente, porque la función real solo existe donde hay exactitud técnica.
Planificamos antes de diseñar, diseñamos antes de producir
«Cada etapa está pensada para asegurar calidad, funcionalidad y resultados a tu medida.»
Matriz de Colecciones Gretek. Arquitectura de Modelos.
Una vez garantizada la resiliencia a través de nuestro rigor operativo, el siguiente paso es la personalización estética. En Gretek, el diseño no es una decisión aislada, sino la piel que viste a nuestra ingeniería de autor.
Hemos agrupado nuestra tecnología en Colecciones Exclusivas, cada una diseñada para responder a un nivel específico de exigencia y estilo de vida. Desde la calidez esencial de Costa hasta el blindaje total de grado industrial en Nexo, todas nuestras colecciones comparten el mismo ADN de calidad, pero varían en su profundidad de blindaje y acabados
1. Colección COSTA: «La Fortaleza de la Bahía»
Modelos: Bahía | Horizon
Analogía: Inspirada en nuestras bahías protegidas. Como los manglares que resisten el salitre y las mareas, esta colección es el refugio seguro donde comienza la vida familiar. Es la base sólida que aguanta el ritmo de la ciudad.
Frase:«Donde tu historia comienza, la resiliencia permanece.»
Para quién es: Parejas jóvenes, primeros apartamentos y propietarios de rentas cortas (Airbnb) que buscan la mejor relación inversión-durabilidad del mercado.
Acceso Familiar: Diseñada para ser la entrada al mundo Gretek, permitiendo que cualquier familia dominicana acceda a una cocina de ingeniería profesional sin comprometer su presupuesto.
Paquete Integrado:
Tablero: BoardPure Element (Resistencia urbana).
Encimera: Surface Classic A (Cuarzo Genérico Seleccionado).
Motion Compass (Blum correderas ocultas Tandem sierre suave- Acero ultra-resistente).
Bisagras
Blum MODUL (Sistema de enganche rápido).
Blum MODUL (Sistema de enganche rápido).
Elevación
Brazos mecánicos reforzados para muebles aéreos.
Brazos mecánicos reforzados para muebles aéreos.
Instalación
Base Estructural Aislada del piso y Madera Tratada.
Base Estructural Aislada del piso y Madera Tratada.
2. Colección ATLANTIC: «El Equilibrio del Arrecife»
Modelos: Arena | Coral
Analogía: Inspirada en la barrera de coral que protege nuestras costas. Es el equilibrio perfecto entre la belleza orgánica de la arena y la fuerza de las corrientes atlánticas. Una colección que fluye con la familia y resiste el paso del tiempo.
Frase:«La armonía perfecta entre diseño europeo y corazón caribeño.»
Para quién es: Familias en crecimiento que valoran el confort, el silencio y la estética. Para quienes ven la cocina como el centro de reunión diario.
Acceso Familiar: El «salto de calidad» aspiracional. Un lujo alcanzable que garantiza que no tendrás que reinvertir en otra cocina en décadas.
Valor Gretek: Módulo de fregadero en Compacto Fenólico y Sellado UR.
FICHA TÉCNICA: Modelo ATLANTIC
Especificación
Modelo: ATLANTIC ARENA
Colección
ATLANTIC ARENA
ATLANTIC CORAL
Concepto
Texturas cálidas y movimiento Suave.
Texturas cálidas y movimiento fluido.
Estructura
BoardPure Gama (Resistente a la humedad. Europeo).
BoardPure Gama (Resistente a la humedad. Europeo).
Zona Crítica
Módulo de Fregadero en Compacto Fenólico.
Módulo de Fregadero en Compacto Fenólico.
Encimera
Surface Essential A (Pidra Natural Sensa/ Mármol de arquitectura).
Surface Essential A+ (Silestone 20mm).
Gavetas y Cierre
Motion Elegant (Tandembox Antaro – Carga 30kg). Gavetas de almacenaje ocultas sierre suave. Especiero. Zafacón. Avento HK TOP. Tip-On
Motion Elegant (Tandembox Antaro – Carga 30kg). Gavetas de almacenaje ocultas sierre suave. Especiero. Zafacón. Bandeja extraible en Fregadero. Avento HK TOP. Tip-On
Bisagras
Clip-Top Blumotion (Cierre silencioso).
Clip-Top Blumotion (Cierre silencioso).
Instalación
Sellado UR (Uretano) y Base Aislada del piso.
Sellado UR (Uretano) y Base Aislada del piso.
3. Colección HABITA: «La Esencia de la Sierra»
Modelos: Esencia | Origen
Analogía: Inspirada en nuestras montañas y bosques nublados. Representa la profundidad de la madera real y la frescura de las alturas. Es una cocina que respira, con texturas que imitan la perfección de la naturaleza virgen.
Frase:«Elegancia orgánica que respira vida en cada detalle.»
Para quién es: Amantes del diseño de interiores, arquitectos y clientes que buscan una experiencia táctil y visual de nivel internacional en su hogar.
Acceso Familiar: Una inversión en patrimonio y bienestar. Para quienes priorizan la ergonomía avanzada y materiales de última generación.
Paquete Integrado:
Tablero: BoardPure Gama Premium (Texturas sincronizadas de alto relieve).
Encimera: Surface Essential/Advanced (Porcelanato o Sinterizada).
Herrajes: Motion Cubic (Gavetas Merivobox y elevación Aventos).
Valor Gretek: Membrana Avirex™ en muro y organización interna.
FICHA TÉCNICA: Modelo HABITA
Especificación
Detalle Técnico Gretek
Colección
HABITA ESENCIA
HABITA ORIGIN
Perfil de Uso
Proyectos de autor donde el diseño y la ergonomía son prioridad.
Proyectos de autor donde el diseño y la ergonomía son prioridad.
Tablero Estructural
BoardPure Gama Premium (Texturas Sincronizadas).
BoardPure Gama Premium (Texturas Sincronizadas).
Zona Crítica
Módulo de fregadero en Fenólico Estructural.
Módulo de fregadero en Fenólico Estructural.
Encimera (Tope)
Surface Essential (Porcelanato de gran formato Coverlam/Techelam).
AVENTOS HK-S (Compases mecánicos de parada exacta).
AVENTOS HF-S (Compases mecánicos de parada exacta).
Protección
Membrana Avirex™ (Barrera de vapor en muros).
Membrana Avirex™ (Barrera de vapor en muros).
4. Colección NEXO RAÍZ: «La Inmunidad del Manantial»
Modelo: Signature
Analogía: Inspirada en los nacimientos de agua en las profundidades de la tierra. Representa el origen, la fuerza del agua y la roca eterna. Es una cocina que no solo habita el espacio, sino que lo domina con una estructura indestructible.
Frase:«Ingeniería de origen: La cocina definitiva que el tiempo no puede tocar.»
Para quién es: Residencias de ultra-lujo, villas de costa frente al mar y clientes que exigen lo absoluto en tecnología y personalización.
Acceso Familiar: La cumbre de la pirámide. Es la tranquilidad total; la cocina que heredarán las próximas generaciones.
Motion Elite (Legrabox – El herraje más fino del mundo).
Tecnología
TIP-ON BLUMOTION (Apertura por toque + Cierre suave).
Sistemas de Alzado
SERVO-DRIVE (Apertura y cierre eléctrico).
Instalación
Protocolo Maestro: Avirex, Sellado UR y Zócalo de Ventilación.
La esencia Gretek:
La evolución del espacio culinario bajo el sello Gretek significa:
Ingeniería de Precisión: Aplicamos rigor técnico en cada medición y ensamblaje para que el diseño teórico funcione sin fallas en la realidad física.
Resiliencia Adaptativa: Entendemos los desafíos del entorno (humedad, clima, uso) y evolucionamos los materiales para que tu cocina no solo resista, sino que mantenga su perfección con el paso de los años.
Diseño Centrado en el Usuario: La evolución no es solo estética; es funcional. Optimizamos cada movimiento y centímetro para que el espacio trabaje para ti, y no al revés.
«En Gretek Evolucionar el espacio es elevar el estándar de lo que una cocina puede y debe ser en la República Dominicana.»
Filosofía Gretek: Ingeniería con Propósito
En Gretek, nuestra filosofía no se mide en metros lineales, sino en años de vida útil y satisfacción real. Creemos que una cocina modular no es un producto terminado al salir de la fábrica; es un sistema vivo que debe evolucionar y resistir junto a quienes lo habitan.
Nuestros tres pilares fundamentales definen quiénes somos:
Adaptabilidad Tropical: Entendemos nuestro entorno. Nuestra filosofía nos obliga a seleccionar materiales y procesos que desafíen la humedad y el clima de la República Dominicana, transformando problemas comunes en soluciones permanentes.
El Cliente como Eje de Diseño: No imponemos tendencias; alineamos nuestra ingeniería a la visión de cada cliente. Cada proyecto es una pieza única de precisión, adaptada milimétricamente para superar las expectativas más exigentes.
Compromiso Post-Entrega (Fase de Resiliencia): Nuestra relación no termina con la instalación. Para Gretek, el éxito se confirma en el acompañamiento. Estamos presentes para asegurar que cada sistema mantenga su alineación, funcionalidad y estética frente al paso del tiempo.
Firma en el ADN: El Código Gretek
Nuestro nombre no es una coincidencia, es nuestra declaración de principios. Gretek es la síntesis de una genealogía técnica: Grete, el diminutivo alemán de Margarete, la mujer que humanizó la función; y Küche, la palabra alemana para la Cocina como sistema de precisión.
Grete + K = Gretek.
Es la unión indivisible de la visión arquitectónica y la ingeniería alemana. Es el respeto por el origen y el dominio de la tecnología del mañana.
En Gretek, la historia no es algo que recordamos; es algo que instalamos en su hogar.
Proyectos Gretek
Proyectos que hablan por sí solos
Testimonios
Lo que dicen nuestros clientes
Preguntas Frecuentes – Gretek Cocinas
¿Por qué Gretek utiliza materiales distintos para el área del fregadero?
Porque es la «zona de impacto». El 90% de los daños en cocinas dominicanas empiezan por una pequeña filtración en el desagüe o la llave. Al usar Compacto Fenólico en esa zona, garantizamos que, aunque haya una fuga de agua, el material no se hinchará, no criará moho y se mantendrá estructuralmente intacto. Es una inversión en tranquilidad.
¿Qué pasa si hay una inundación o se derrama mucha agua al limpiar el piso?
Nuestra solución de Zócalo Técnico de PVC actúa como un escudo impermeable. A diferencia de las cocinas tradicionales donde el gabinete toca el suelo, el sistema Gretek eleva la estructura, permitiendo que el agua pase por debajo sin tocar la madera, facilitando la limpieza y evitando la humedad por capilaridad.
¿Mi cocina Gretek es resistente a las termitas y el carcoma?
Totalmente. Al combinar Melamina RH Europea de alta densidad (que por su proceso químico de resinas es poco atractiva para los insectos), Pino Tratado en la base y Fenólico/PVC en zonas críticas, creamos un entorno hostil para las plagas. Además, nuestra barrera de muro evita que los insectos aniden entre la pared y el mueble.
¿Cómo es el proceso para obtener una cotización?
Nuestro proceso es sencillo y transparente:
1. Registro y Envío: Nos envías fotos, videos o planos de tu espacio.
2. Cotización Preliminar: Te entregamos un presupuesto estimado basado en tu información.
3. Levantamiento en Sitio: Si apruebas el rango preliminar, visitamos tu hogar para tomar medidas exactas.
4. Cotización Definitiva: Recibes el presupuesto final con diseño y materiales confirmados.
¿De qué materiales están hechas las cocinas Gretek?
Usamos Melamina RH (Resistente a la Humedad) de marcas europeas premium (como Egger o Finsa). Además, somos los únicos que integramos módulos de fenólico en áreas críticas para asegurar que tu cocina dure décadas, no años.
¿Qué tipo de encimeras o mesetas ofrecen?
Trabajamos con Granito natural, Cuarzo y superficies ultracompactas. Todas nuestras instalaciones incluyen sellado de uretano de grado náutico para blindar tus gabinetes contra filtraciones.
¿Cómo protegen la cocina contra la humedad de la pared?
Aplicamos el Sistema de 4 Capas Gretek: membrana hidrófuga en pared (tipo Avirex), zócalos de PVC con alma de pino tratado, sellado de uretano elástico y herrajes con protección anticorrosión para el clima del Caribe.
¿Qué es una cocina modular?
Una cocina modular es un sistema de diseño y organización del espacio culinario basado en el uso de unidades o «módulos» prefabricados e independientes.
La característica fundamental de la cocina modular es su versatilidad. Al ser piezas individuales, ofrecen una gran facilidad de instalación y la posibilidad de ser desmontadas, reconfiguradas o incluso trasladadas a una nueva vivienda. Además, destacan por:
Optimización del espacio: Aprovechan cada centímetro mediante accesorios internos inteligentes.
Estandarización: Los módulos suelen seguir medidas universales (30, 45, 60 o 90 cm), lo que facilita la integración de electrodomésticos.
Variedad estética: Permiten elegir entre múltiples acabados, colores y materiales para puertas y encimeras.
Tipos de Cocinas Modulares
Los tipos de Cocinas Modulares, dependiendo de la distribución del espacio, las configuraciones más comunes son:
En Línea (I): Ideal para espacios estrechos o apartamentos pequeños.
En L: Aprovecha las esquinas y permite crear un flujo de trabajo eficiente.
En U: Perfecta para cocinas amplias, ofreciendo máxima superficie de trabajo y almacenamiento.
Con Isla o Península: Añade un módulo central independiente que sirve como zona de cocción, lavado o comedor informal.
La cocina modular ideal para la República Dominicana
El Estándar de Ingeniería Gretek
Para que una cocina sea funcional y duradera en el clima de la República Dominicana, no basta con la estética; requiere una ejecución técnica superior. Nuestra Ingeniería de Campo y el proceso CoreDesign definen la cocina ideal bajo estos pilares:
Resistencia Hidrófuga Real: Olvida el MDF convencional. Utilizamos materiales de alta densidad con sellado perimetral avanzado para anular la hinchazón por humedad y filtraciones.
Inmunidad Biológica: Estructuras tratadas y certificadas contra el ataque de termitas (carcoma), garantizando la integridad del mobiliario por décadas.
Precisión Estructural: Herrajes de alta gama y sistemas de montaje que mantienen la alineación perfecta de puertas y gavetas, resistiendo el uso intensivo sin desajustes.
Adaptabilidad Local: Diseños que consideran la ventilación y el flujo de calor específicos de nuestro entorno, optimizando la vida útil de tus electrodomésticos.
Cómo nace Gretek?
Gretek surge de una necesidad clara: elevar el estándar de las cocinas modernas en la República Dominicana. Observamos un mercado donde el diseño se veía comprometido por el deterioro prematuro, la humedad y las termitas, y decidimos cambiar las reglas del juego.
Use of Modified Shipping Container Office Becomes a Common Trend Today
«Desde el inicio, nuestra propuesta fue diseñar cocinas con criterio técnico, ingeniería del espacio y materiales de alto rendimieto»
📜 Certificado de Resiliencia Gretek™. «Ingeniería para Generaciones: Nuestra Promesa Técnica»
Al adquirir una Cocina Gretek, usted no está comprando mobiliario; está invirtiendo en un sistema de alto desempeño diseñado para sobrevivir a las condiciones más agresivas del trópico. Cada proyecto entregado está respaldado por nuestra promesa de Resiliencia Operativa.
Nuestra garantía se divide en 4 niveles de protección para asegurar que su inversión mantenga su valor táctico y estético a través de las décadas.
¿Qué cubre su Blindaje Gretek?
🛡️ Resiliencia Estructural (Sistema HydroShield™): Garantía total 20 (años) contra la degradación por humedad, hinchazón de núcleos o desprendimiento de cantos. El uso de sellado grado náutico (UR) y blindaje Avirex asegura que la estructura se mantenga inalterable, incluso en condiciones de humedad crítica.
⚙️ Ciclo de Vida del Movimiento (System Motion™): Certificamos la fluidez eterna de sus herrajes. Garantía de por vida (solo mantenimiento en 5 a 10 años) en mecanismos de extracción, bisagras y sistemas de cierre suave de precisión alemana. Si deja de ser fluido, lo corregimos.
💎 Integridad de la Armadura (Gretek Surface™): Garantía de desempeño en superficies minerales y sinterizadas frente a porosidad y manchas térmicas, bajo los estándares de fabricación de Silestone, Dekton y Sensa. (20 años de vida útil)
🛰️ Auditoría de Post-Venta: Nuestra garantía incluye una visita técnica de validación a los 6 meses de la instalación para auditar el comportamiento del sistema en el sitio y asegurar que la calibración de la ingeniería sigue siendo perfecta.
¿Qué NO cubre esta garantía? (Cláusulas de Seguridad para Gretek)
Daños causados por inundaciones externas mayores (desbordamientos naturales).
Uso de productos de limpieza abrasivos o corrosivos (ácidos) que dañen el acabado de la melamina o el metal.
Modificaciones realizadas por personal ajeno al equipo técnico de Gretek.
La Garantía del «Saber Hacer»
Esta certificación es el resultado de nuestro Ciclo de Proyecto (CPG). Al eliminar la improvisación mediante la telemetría láser y la producción automatizada, garantizamos un ajuste milimétrico que previene el desgaste prematuro que sufren las cocinas convencionales
Respaldo de Garantía
Nuestros proyectos están avalados por marcas certificadas.
Módulos de Zona Crítica (Fenólico): Garantía de 10 años contra hinchamiento, degradación por agua directa o presencia de moho.
Módulos de Zona Seca (Melamina RH): Garantía de 5 años contra defectos de fabricación y resistencia a la humedad ambiental (cumpliendo normas ISO de tableros hidrófugos).
Barrera de Vapor (Aislamiento de Muro): Garantía de instalación por 3 años asegurando la estanqueidad entre el mueble y la pared..
Silestone/Techelam/Dekton
surface/Encimeras
Dekton 25 años. Silestone 25 años. Techlam 10 años
Instalación & Acabados
Sellado de Uretano: Garantía de 2 años en la integridad de los sellos perimetrales contra filtraciones.
Ajuste y Nivelación: Soporte técnico gratuito durante los primeros 12 meses para reajustes de puertas y gavetas tras el asentamiento natural de la estructura.
Blum. AL Componentes
MOVIMIENTO &Herrajes
Lorem ipsum dolor sit Garantía de Vida Útil Limitada (o 20 años) en bisagras, guías de gavetas y sistemas de elevación Aventos. Esta garantía cubre fallos mecánicos y pérdida de suavidad en el cierre.
Protección Anticorrosión: Garantía de 3 años contra la aparición de óxido en componentes con recubrimiento de níquel (aplicable en condiciones de uso residencial normal)..
¿Listo para transformar tu espacio con ingeniería real?